Surélévation
[Interview] Pourquoi créer une surélévation en bois ?
Mis à jour le 21 déc. 2022Découvrez les avantages de la surélévation bois. Interview de Serge Sandri, gérant de la société M2 Plus, Charpentier et diplômé d’architecture.
Quelles sont vos activités principales ?
Nous nous sommes établis sur le créneau des surélévations-extensions de maisons et des aménagements de combles. La société est dotée d'un bureau d'études, nous permettant de maîtriser toutes les étapes de la démarche de construction et de créer nos propres projets. Bien sûr, il nous arrive de faire appel à d'autres architectes lorsque nous avons trop de travail. Leur démarche est similaire à la nôtre et ils s'intègrent à notre processus de manière très fluide.
Nous intervenons essentiellement auprès de particuliers, même s'il nous arrive de travailler sur un ou deux projets dans l'année pour des collectivités.

Une rehausse partielle en bois sur une maison maçonnée.
Quel type de clientèle fait appel à vous ?
Nos clients possèdent généralement des maisons contemporaines avec des charpentes en fermette. Apparues après la dernière guerre, elles sont issues d'un procédé américain. Les fermettes ont l'avantage de faire baisser le coût global de la construction, car elles évitent de faire une dalle en béton. Elles tiennent le toit, par un système de triangulation solide et indéformable, posé tous les 60 cm environ. Mais cela induit une perte d'espace et les combles ne sont pas habitables. On dit alors qu'ils sont « perdus ».
Il est cependant possible d'adapter ces volumes pour aménager des coins de lecture, des salles de jeu… En revanche, il ne sera pas envisageable d'y installer une cuisine ou un séjour, car la fermette possède une résistance assez faible vu qu'elle est conçue pour supporter des plafonds uniquement. Le problème consiste à renforcer la structure pour de l'habitation.

Un exemple de charpente en fermette.
Les personnes qui nous consultent souhaitent disposer de ces espaces sous le toit pour en faire des pièces de vie secondaires, parce qu'ils n'ont pas toujours les moyens de réaliser une extension ou une surélévation.
Mais attention, il ne faut pas confondre : les interventions sur des charpentes traditionnelles sont beaucoup moins lourdes et peuvent être effectuées par des entreprises de second œuvre. De notre côté, nous effectuons uniquement des travaux de renforcement sur des charpentes de type fermette, intervention plus délicate car le plancher n'existe pas.
Chaque chantier est spécifique et nous nous adaptons en fonction des ses particularités.
Justement, de quelle manière procédez-vous pour ce type d'aménagement ?
Il faut tout d'abord enlever l'isolation. Puis les travaux consistent à dégager l'espace des combles occupé par les éléments de la charpente et à renforcer cette dernière. On peut procéder à un renforcement au niveau des entraits (parties inférieures des triangles au niveau du plancher, tous les 60 cm) et au niveau des arbalétriers (parties obliques des triangles, qui constituent la pente du toit).

Une coupe de charpente : 1 arbalétrier. 2 contre fiche. 3 entrait. 4 Fiche. 5 nœud de ferme.
Il existe plusieurs systèmes de renforcement. En voici deux exemples simples et schématiques. Mais chaque chantier est spécifique et nous nous adaptons en fonction des ses particularités.
Premier cas de figure : on pose des poutres en lamellé-collé qui s'appuient d'un mur à l'autre de la maison, à des intervalles de 3 m à 3 m 50. Ensuite, dans l'autre sens, tous les 50 cm, on place des poutres secondaires en bois massif. Elles sont posées sur des sabots métalliques ou sur des lisses d'appui. Ce renforcement du plancher permet d'obtenir une résistance au sol plus importante. Pour effectuer ces opérations, il faut ouvrir le toit tous les 3 Ml environ (en tranches) pour faire passer les poutres.
Dans le second cas de figure, on aménage des passages entre fermettes en dégageant les tuiles du toit. Ces trappes ouvrent l'accès aux ouvriers et aux matériaux sur le chantier par des échafaudages depuis l'extérieur. Les fermettes sont ensuite doublées en horizontal et en diagonale (moisage) par des planches boulonnées. On peut ensuite dégager la partie centrale en coupant les planches au milieu pour libérer un espace de 1m 50 à 2 m de chaque côté à partir de l'axe. Cela permet de créer des petits espaces pour les enfants, des coins télé ou des salons de lecture. Les dimensions varient suivant la pente de la toiture et le désir de voir la toiture rejoindre le sol ou non.
Enfin, on amène l'électricité et parfois on effectue une prolongation du système de chauffage. On installe également de grands Velux. Ils apportent bien sûr de la lumière, mais ils permettent en outre un rehaussement intéressant, pour aménager un coin bureau, par exemple.
En ce qui concerne la surélévation ou la rehausse de toit ?
Nous faisons la différence entre ces deux techniques. En effet, une rehausse de toit consiste à remonter le toit en modifiant la pente sans changer les supports maçonnés, pour aménager une seule grande pièce par exemple. Alors qu'une surélévation permet de créer un habitat où l'on se tient debout en modifiant les supports maçonnés. En général, on nous demande ce type de travaux afin d'ajouter deux pièces supplémentaires avec une salle d'eau et WC. Les surfaces les plus courantes sont de l'ordre de 40m2.

Eéléments constitutifs d'une charpente.

Avant projet d'une surélévation partielle.
Quelle est la tendance pour ce marché ?
Plutôt que de faire construire, les particuliers préfèrent agrandir leur maison (grâce à une extension, ou une surélévation). Mais l'aménagement de combles constitue une option encore moins onéreuse. Par exemple, pour des surfaces de 30 à 50m², on peut constater sur notre région des coûts allant de 800 à 1 200 euros du m². Pour des surélévations, les tarifs s'échelonnent de 1 200 à 1 600 euros, en fonction de la difficulté du chantier et de la surface.

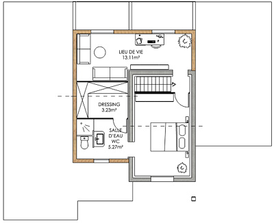
Plan d'un aménagement de combles.
Serge Sandri, gérant de la société M2 Plus
Charpentier et diplômé d’architecture, Serge Sandri réalise avec son équipe des extensions, surélévations et des aménagements de combles dans la région Rhône-Alpes. Il conçoit et construit également de petits immeubles mixtes bois-béton.
partager
sur Facebook sur LinkedIn sur Pinterest par mail sur Twitter