Escalier
[Tuto] Escalier : Comment définir l'implantation de son escalier ?
Mis à jour le 30 juil. 2020Découvrez comment intégrer un escalier dans le cadre d'une rénovation : définition de l'implantation, de sa forme et de la hauteur des marches.
Analyser l'espace disponible, calcul des hauteurs de marche
Analyser l'espace disponible
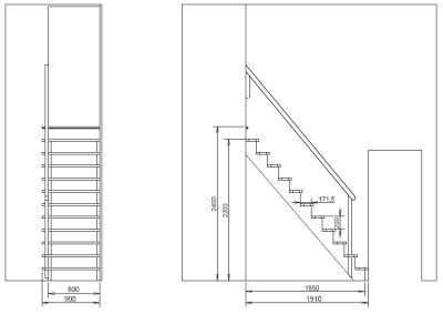
La première étape consiste à relever les dimensions de l'espace disponible pour y placer l'escalier et faire un plan coté afin de définir le nombre et la hauteur des marches.

Calculer les hauteurs des marches
La pente de l'escalier résulte de la hauteur d'étage et de la longueur disponible au sol. Ces deux paramètres nous donnent l'inclinaison de l'escalier. Une inclinaison moyenne se situe en général entre 25° et 40° pour un escalier d'intérieur mais peut avoir une valeur de 60° à 70° pour une échelle de meunier. L'inclinaison doit être constante.
Dans notre cas, la hauteur sol/sol est de 2,40 m et la profondeur disponible est de 1,85m, l'inclinaison sera de l'ordre de 52°, on constate que l'on se trouve dans une configuration entre l'escalier et l'échelle de meunier. L'espace disponible est relativement réduit, on peut de suite se rendre compte que l'escalier ne sera pas dans la catégorie des plus confortables mais son utilisation reste occasionnelle.

L'échappée de la tête constitue un élément important dont il faut tenir compte, elle désigne la hauteur entre les marches et le plafond. Dans notre cas, elle sera conditionnée par l'ouverture de la cloison au sommet de l'escalier. Elle doit être au moins égale à 2 m pour un escalier d'intérieur.
Terminologie


C'est l'amplitude moyenne du pas humain qui sert de base au dimensionnement des marches. François Blondel (1618-1686) définit une relation entre la longueur moyenne du pas de l'homme, la hauteur et la profondeur des marches. Cette relation est représentée par la formule suivante appelée formule de Blondel : G + 2H = A
- G étant la valeur du giron en cm.
- H étant la hauteur de la marche en cm.
- A étant l'amplitude moyennedu pas en cm.
Pour un escalier confortable, l'amplitude se situe entre 60 et 66 cm avec une moyenne à 64 cm.
Le nombre de marches sera donc un nombre entier calculé en rapport avec les valeurs de H et G issues de la formule de Blondel.
Pour notre application, la hauteur des marches sera conditionnée par la volumétrie disponible.
- Hauteur sol/sol = 240 cm
- Reculement (longueur au sol) : 185 cm
- Le nombre de marches sera de 12, le giron de 17,15 cm et la hauteur de marche de 20 cm.

Pour plus d'informations, vous pouvez parcourir les normes NF P 21-210 et NF P 21-211 relatives à la construction d'un escalier intérieur.
partager
sur Facebook sur LinkedIn sur Pinterest par mail sur Twitter