Maison
[Réalisation] Maison en Gironde : Mixité bois et verre
Mis à jour le 8 sept. 2022Découvrez cette construction de 160m2 située en Gironde qui joue sur la mixité des matériaux avec le bois et le verre. Rencontre avec l'architecte Pierre-Marie Peret.
Fiche technique
- Lieu : Gironde
- Surface maison : 160m²
- Surface terrain : 1 000 m²
- Année de construction : 2001
- Bois utilisés : Bardage à base d'épicéa traité en autoclave, brossé et peint en blanc
Rencontre avec l'architecte : Pierre-Marie Peret
"Mes premières maisons à ossature bois ont vu le jour en 1980"
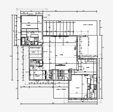
Elle accueille, au rez-de-chaussée, divers espaces : un grand salon de 80 m², une cuisine, une chambre et une salle de bain pour recevoir des amis, et enfin un "coin parents" avec chambre, dressing et salle d'eau. L'étage, quant à lui, est exclusivement réservé aux enfants.
Les plans de la maison

Le plan du rez-de-chaussée de la maison.

Le plan de l'étage de la maison.
La maison en détail

Le bardage, peint en usine, est garantie dix ans. Il est ici posé horizontalement sur la partie rez-de-chaussée et verticalement à l'étage, pour chasser toute uniformité.

Les menuiseries sont en aluminium pour apporter une touche de légèreté et de finesse.

Coté jardin, la terrasse est en pin, traité Classe 4. Ce bois est également utilisé pour les poutres, les poteaux, les solives...

Particulier, cet escalier en pin donnant accès à l'espace enfant est protégé par une verrière.

L'entrée se fait par la verrière. Cette paroi transparente permet "d'être en symbiose avec l'extérieur" et de bénéficier d'une source de lumière abondante.

Un plafond en lambris, des poutres en pin traversant la pièce, des lames de bardage aux murs donnent à cette chambre fière allure.
Trois questions à l'architecte
Pourquoi le choix du bois pour cette maison ?
Les propriétaires sont venus me trouver car ils avaient été séduits par l'originalité et la qualité de mes réalisations. Ils souhaitaient un univers bois, dans lequel ils avaient vécu, dans la maison familiale. Pour ce projet, un certain nombre de points techniques ont été innovants, notamment dans l'isolation et la structure mixte.
Les demandes de vos clients pour cette maison ?
Plusieurs points se sont dégagés très nettement de leurs écrits : un rez-de-chaussée convivial et une maison lumineuse, la possibilité de recevoir des amis, une liaison intérieure-extérieure très forte et un lieu de vie séparé pour les enfants.
Comment travaillez-vous avec vos clients ?
Je souhaite que le client s'exprime personnellement avec ses moyens propres, souvent l'écriture, et non le dessin, pour définir ses besoins, ses souhaits, et mêmes ses rêves.
Il me semble indispensable d'aller chercher, avec le client, tout ce qui deviendra propice à l'élaboration de son futur lieu de vie. Tout est en lui, le rôle de l'architecte est de l'accompagner dans sa recherche.
L'esquisse qui en ressort est donc la transcription graphique et sensible, de tous les éléments qui ont pu nourrir sa démarche personnelle.
partager
sur Facebook sur LinkedIn sur Pinterest par mail sur Twitter