![[Réalisation] Une maison contemporaine en Creuse](https://www.bois.com/uploads/cache/article_page_bg/uploads/media/5c785b7f8c508/face-nord-maison-creuse.jpg) Maison
							
								Maison
							
							[Réalisation] Une maison contemporaine en Creuse
Mis à jour le 8 sept. 2022Découvrez une superbe maison bois posée sur un socle massif de granit. Mixité des matériaux et réelle singularité. Rencontre avec l'architecte Pierre Sartoux.
Fiche technique
- Lieu : Mansat-la-Courrière (Creuse)
- Surface maison : 387m² dont appartement principal (T4) 210 m², deuxième appartement (T2) 55 m², piscine et sauna 122 m²
- Surface terrain : N.C.
- Année de construction : 2006
- Bois utilisés : Bardage en mélèze

Rencontre avec l'architecte : Pierre Sartoux
soa architectes, créé à Paris en 2001 par Augustin Rosenstiehl, Pierre Sartoux et Aline Aviron. Ils travaillent ensemble sur leur réalisations et aiment allier hautes technologies et savoir-faire ancestraux.
Cette maison a une histoire... celle de deux frères qui veillent l'un sur l'autre à des périodes différentes de leur vie. Le plus vieux ayant élevé le plus jeune, ce dernier a décidé de faire construire une maison dans laquelle tous les membres de la famille pourraient se réunir, tout en conservant leur indépendance.
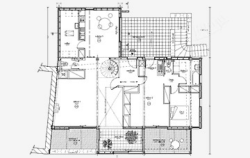
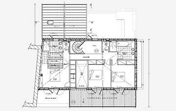
Les plans de la maison

Le plan du rez-de-chaussée de la maison.

Le plan de l'étage de la maison.
Le chantier

La toiture a été posée en même temps que la structure en métal.

La structure en métal des deux niveaux supérieurs s'appuie sur les fondations existantes.
La maison en détail

La face nord de la maison propose des ouvertures plus étroites.

Le bardage en mélèze est posé verticalement sur la partie en rez-de-prairie et horizontalement à l'étage supérieur.

D'abord prévue à l'extérieur, la piscine construite en sous-sol est utilisable tout au long de l'année.

Un jeux de terrasses couvertes et à ciel ouvert permet de faire le lien entre les 2 appartements.
Questions à Pierre Sartoux
C'est un projet original, n'est-ce pas ?
Oui, depuis le début, l'histoire de ce projet est "atypique". D'abord parce qu'il s'agit d'une belle histoire de famille. Par ce geste, mon client a voulu remercier son frère de s'être occupé de lui tout jeune. Ensuite, il s'est vraiment investi dans cette aventure et a été très présent. Si bien que le projet a évolué au fil du temps... et son budget en conséquence. Comme par exemple la piscine, qui devait être construite initialement à l'extérieur et qui a finalement trouvé sa place dans le sous-sol.
Pourquoi avoir conservé certains murs de l'ancienne bâtisse ?
Dans notre agence, nous sommes très concernés par le développement durable. A mon avis, la réutilisation d'un matériau déjà existant est en parfaite cohérence avec cette philosophie. En outre cela ne gêne en rien notre créativité... bien au contraire. Plus nous avons de contraintes, plus nous arrivons à trouver des solutions intéressantes.
 
 
					
partager
sur Facebook sur LinkedIn sur Pinterest par mail sur Twitter