Chevrons porteur longue portée
Bonjour à toutes et tous,
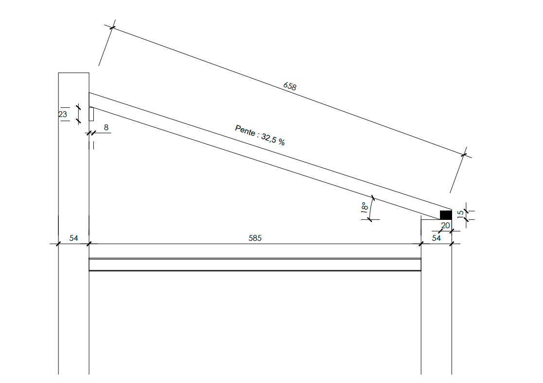
Je restaure un vieux chais dans le libournais (Gironde). Je choisis une charpente chevrons porteurs pour que rien ne soit visible de l'intérieur de l'habitation. Le problème c'est que la portée est de 585 cm entre appuis. Je prévois une pente à 30 % donc chevrons d'environ 620 cm de long. Ils supporteront une toiture en tuiles romanes avec 24 cm de fibre de bois entre chaque chevron et un plaquage BA13.
Les chevrons seront bloqués en pied par un chainage en BA. En partie haute ils reposeront sur une muralière fixée, dans un mur en pierre de Libourne, par des tiges filetées et scellements chimiques
Pouvez vous m'aider à dimensionner les chevrons.
Merci d'avance pour votre aide




Votre message :
Vous devez vous connnecter pour poster un commentaire.
S'identifier ou créer un compte