Calcul Solivage + Tropezienne
Bonjour,
dans le cadre d'une rénovation, il est question de refaire un plancher dans le but d'aménager les combles.
Pouvez vous m'aider à vérifier des sections, compte tenu de la configuration et de l'intégration future d'une terrasse ?
Zone : savoie, 500m d'altitude
Les murs sont en parpaings creux.
Charges permanentes estimées : 43 kg/m2 environ
- CTBH 22mm : 15 kg/m2
- Faux plafond BA13 : 13 kg/m2
- Laine de roche soufflée entre solives : 7 kg/m2
- Parquet : 8 kg/m2
Charges d'exploitation : habitation : 150 kg/m2
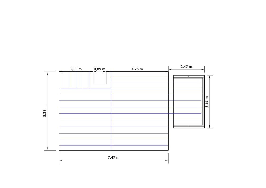
Ce plancher est un plancher d'habitation, sur lequel il y aura des activités de cirque et danses. Nous aimerions le dimensionner avec un certain confort vibratoire pour ne pas gêner les voisins du dessous. Nous aimerions prolonger les solives en vue d'intégrer une terrasse tropezienne.
Soit en faisant un porte à faux de 2m50 avec les solives existantes, soit en ajoutant un nouveau sommier de mur a mur, pour porter les solives en leur bout.
A prendre en compte une trémie de 1m de large, représentée sur le plan.
Est-il possible de poser les sommiers et ou solives sur des pads pour limiter les transmissions de bruits avec les voisins du dessous ?
Compositions : 2 Muraillères + 1 sommier au dessus d'un autre déjà existant qui supporte simplement des chevrons et qui servent de plafond chez les voisins.
P.S : je joins les images dans un second message, puisqu'elle ne s'affichent pas correctement ...


Votre message :
Vous devez vous connnecter pour poster un commentaire.
S'identifier ou créer un compte