Dimensionnement solivage pour toit terrasse inaccessible
Bonjour à tous.
Je vais réaliser deux extensions a ma maison, en agglo creux de 20cm de large, ceinturage béton et acrotère béton, avec toiture terrasse inaccessible en bois avec 3° de pente.
En partant du haut en bas, je vais y mettre :
4cm de gravier pour lestage étanchéité (+/- 95kg/m²)
étanchéité EPDM ép=1.5mm (1.5kg/m²)
isolation en laine de roche double densité de 8cm (21kg/m²)
pare vapeur, OSB 22mm (14.5kg/m²)
isolation laine de bois ép= 30mm (18kg/m²)
finition en plaque de plâtre 13 mm ( 10 kg/m²)
soit au total 160 kg/m² de charge permanente.
A cela il faut que je rajoute une charge climatique la maison se situe dans la commune de Montreux Vieux (68210) à 355.12m d'altitude.
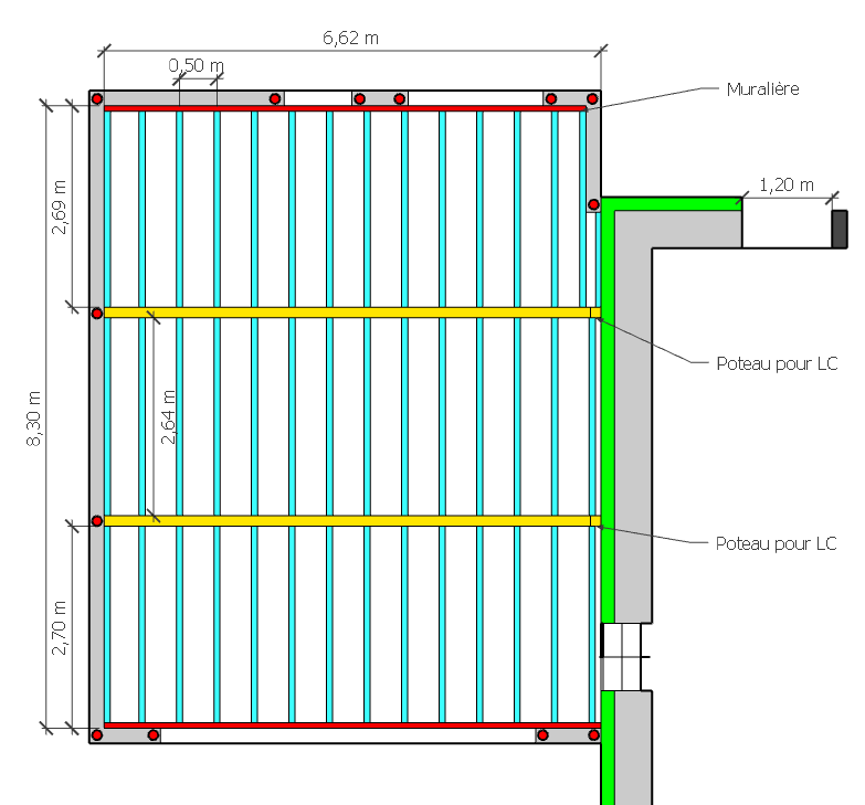
Je joint deux plans, 1 plan pour l'extention habitable, et un plan pour un garage double qui lui sera juste isolé par la couche extérieur, donc sans isolant intérieur entre solives et sans finition placo.
Pour le garage j'ai prévu des poteaux sous les LC coté maison.


Votre message :
Vous devez vous connnecter pour poster un commentaire.
S'identifier ou créer un compte