Plancher bois pour SDB
Bonjour,
Actuellement en cours de rénovation d'un bâti pierre (calcaire à Astéries), j'ai découvert, à la démolition d'un faux plafond lattis (qui avait subi une infiltration d'eau), que le plancher présent au-dessus du faux-plafond n'était pas en bonne forme.
Je souhaite donc déposer l'ensemble de ce plancher, afin d'en réaliser un nouveau en bois, via une muralière.
Mes recherches m'ont amené à plusieurs reprises sur des lectures disponibles dans ce forum. Malgré tout, pas mal de questions restent en suspens, en tant que novice du bois. D'où ma présence et l'ouverture de ce sujet.
Je vais essayer d'être le plus précis et clair possible, en espérant que quelqu'un puisse m'apporter des éléments de réponse.
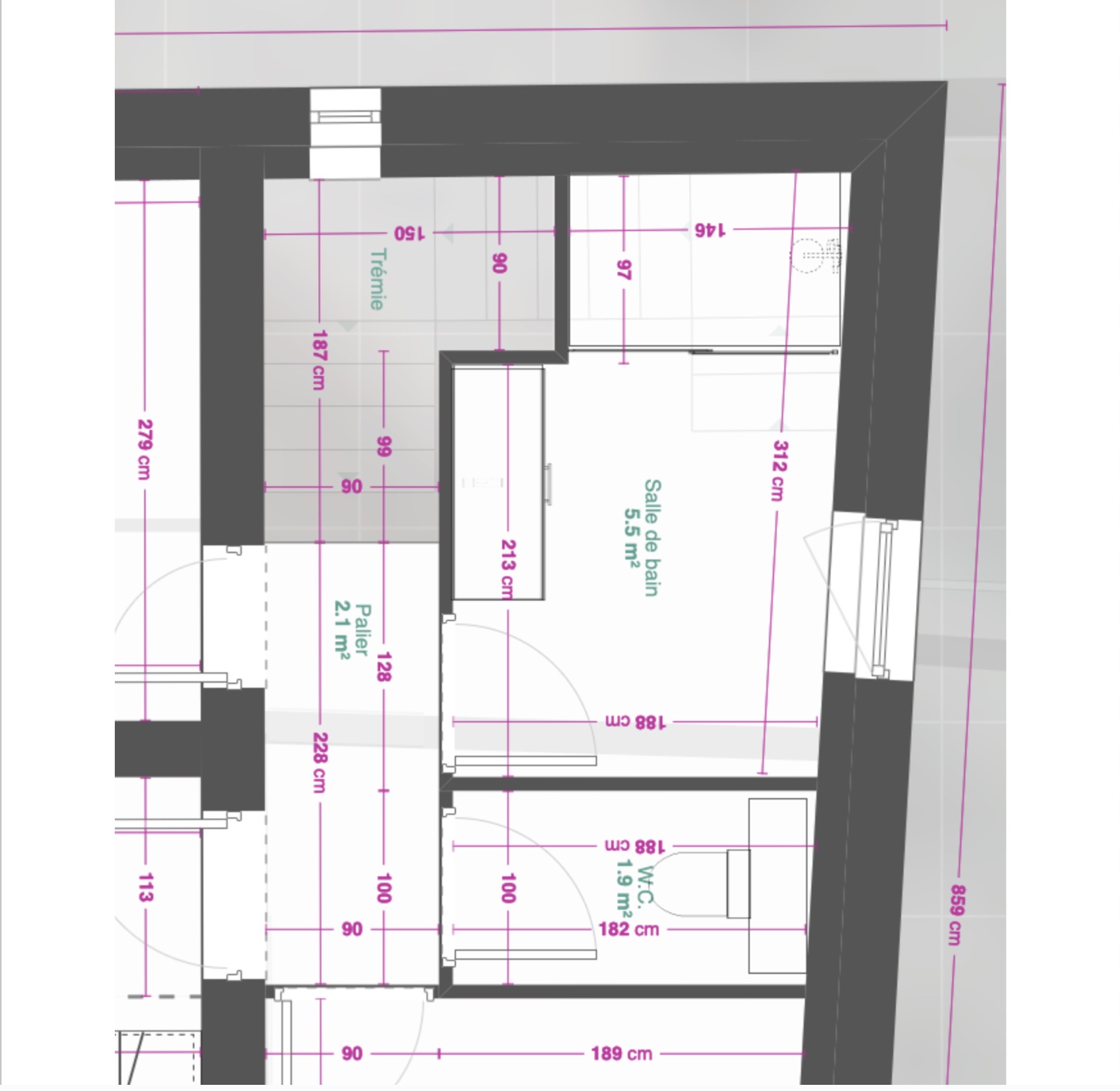
Le plancher à créer va supporter :
- une salle d'eau de 5,5 m² ;
- un WC de 2 m² ;
- un palier de 2 m² ;
- de l'OSB 22mm sur 14 m² = 180 kg ;
- un revêtement de sol = 350 kg ;
- des cloisons (rail/montant/BA13/isolant) = 800 kg ;
- des doublages (rail/montant/BA13/isolant) = 800 kg ;
- l'appui haut d'un escalier débillardé ;
- un faux plafond = 250 kg.
À la connaissance de ces éléments, je souhaite partir vers un solivage permettant de soutenir 300 kg/m², car cette liste ne comptabilise pas le mobilier de SDB, l'escalier, le solivage en lui-même et la charge temporaire.
Cela vous semble-t-il correct, sur-dimensionné, sous-dimensionné ?
Maintenant, quid de la section du solivage et des madriers ?
Je pensais partir vers une section 75x220 car, d'après mes calculs cela semble suffisant, mais aussi parce que dans les grandes enseignes il s'agit d'une section qui est proposée. Mais mes lectures m'ont amené à me méfier du sapin, qui est l'essence proposée dans les magasins de bricolage.
Aussi, le fait d'avoir une trémie ne facilite pas mon calcul.
En effet, je me retrouve avec une solive qui soutient une charge plus importante en un point (cercle rouge, sur le schéma joint), ce qui m'amène à me poser la question d'un solivage jumelé ou d'une section différente pour la solive D ?
Enfin, pour mon aménagement, il serait préférable d'envisager le schéma 2.
Mais cela pose de nouvelles questions, car je ne sais comment effectuer le solivage de la partie en gris foncé.
Je pense qu'il est difficile de faire autrement qu'avec une partie en porte-à-faux (comme pour un balcon), mais cela ne me semble plus du tout être le même type de travail...
Je vous joins des schémas (à presque l'échelle).
Merci du temps que vous accorderez à mes nombreuses interrogations.


Votre message :
Vous devez vous connnecter pour poster un commentaire.
S'identifier ou créer un compte