Dimensionnement plancher haut RDC
Bonjour à tous,
Je suis actuellement en train de rénover une maison en pierre de 1940.
Je comptais refaire le plancher haut du RDC car nous transformons tous dans la maison.
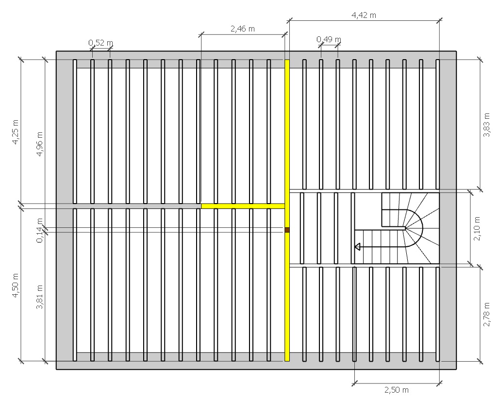
La maison mesure (cotes intérieur) 8.4m de large par 10.80m de long avec un mur porteur en son "centre", le mur est à 4.32m axe pour une épaisseur de 15cm, ce qui me donne des portées de 4.25m et 4m de chaque cotés.
Nous allons mettre un escalier double quart tournant avec une trémie ouverte.
Je voudrais savoir la section des poutres, solives que je dois mettre en place...
Je vais partir sur un OSB de 22mm minimum au dessus des solives, avec un isolant mince et parquet starifié.
Je vais mettre de l'isolation entre solive pour le phonique (Laine de bois) et de la bande résiliente entre l'OSB et les solives contre la résonance et le grincement.
Il y aura un faux plafond réalisé en placo BA13 sur ossature métallique.
Les solives et poutres seraient encrées dans le mur en pierre de 25cm, sur la périphérie de la maison, en appui sur le mur porteur du centre de la maison et avec des sabots sur les poutres .
J'ai réalisé un plan de ce que je "pense" faire si cela va bien entendu.
En jaune se serait des poutres lamellées collées 14cm de large par 35cm de haut
En brun un poteau bois ou métal de 14cm au carré
Le reste serait les solives de 10cm de large par 30cm de haut.
Au plaisir d’échanger.

Votre message :
Vous devez vous connnecter pour poster un commentaire.
S'identifier ou créer un compte