poutre plancher etage bois massif ou contrecollé ?
Bonjour, je suis nouveau sur le forum et je debute dans cet univers passionnant du bois de construction !
j'aurai besoin d'un avis d'expert .
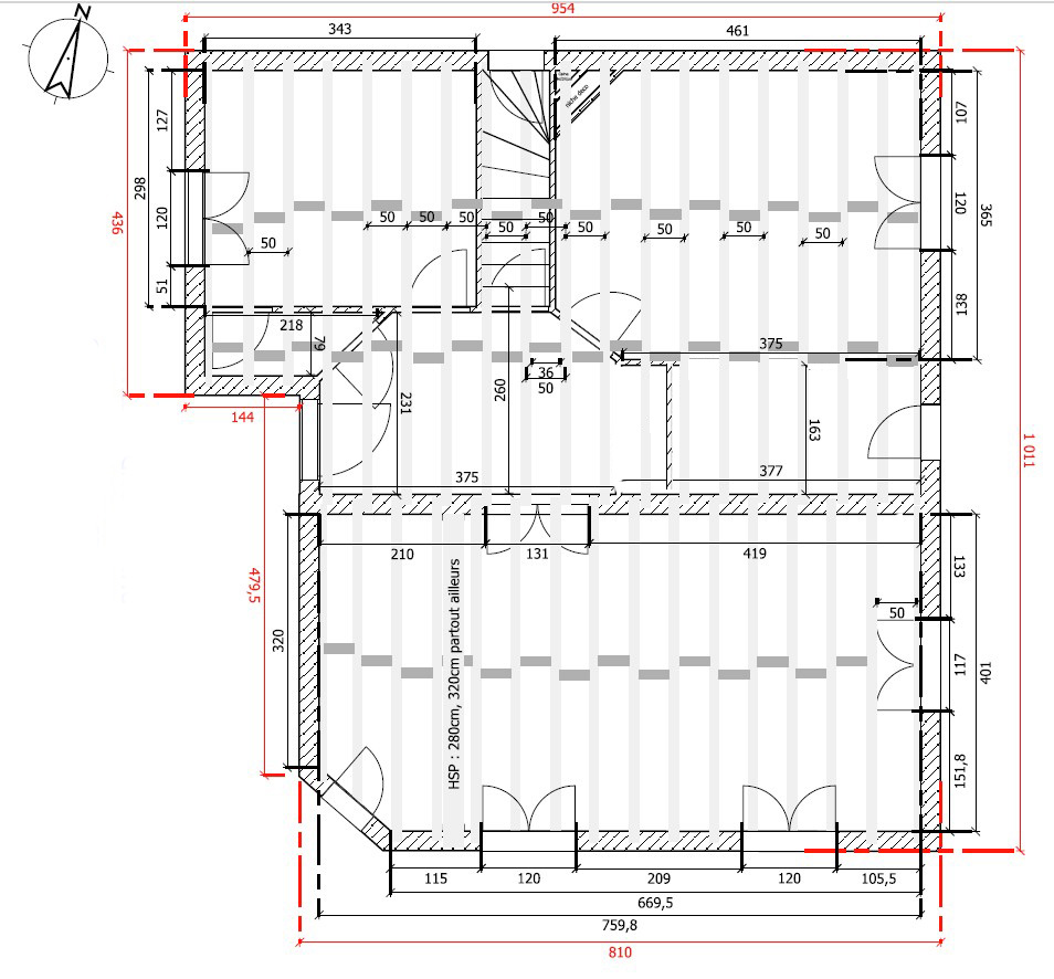
Je rénove une maison de 1930 qui est sur deux niveaux , les murs sont en pierre . Les solives des combles etaient en mauvais etat et mal dimensionnés pour exploiter les combles ( entraxe de 1m50 !! ) le faux plafond en canisse.( bois et platre) etait tres fatigué lui aussi
J'ai donc tout retiré et je vais donc installer de nouvelles solives, un nouveau plafond pour le R+1 et un plancher OSB pour les combles
Comme je suis en plein travaux , je préfère dimensionner le plancher pour un éventuel futur étage ( avec cloisons et revetements legers).
La maison fait 9m65 de large avec un mur de refend en pierre de 25 cm d'epaisseur ( lui même reposant sur un mur en 45cm cette fois ci )
les solives sont donc encastrés dans les murs de part et d'autre de la maison et repose sur le mur de refend au milieu .
On a donc 5m40 à porter pour le coté Nord et 4m pour le coté Sud .
L'entraxe sera de 50cm ( cela me permet de garder les trous deja fait 1fois sur 3 , rappelez vous solives ttes les 150cm avant)
SI je suis le calcul traditionnel et les recommandations pour une charge de 240kg/m2 et avec une entraxe de 50cm, ca donne
pour largeur de 4m : 75 x 225
pour largeur de 5m40 : 100x280
Je pensais donc partir sur :
Bois massif epicea / sapin C24 traité et anti termites en
100X300 pour les 5m40 et 75 x 225 ( même bois ) pour les 4m
avec 1 entretoise au milieu des 4 metres et deux entretoises ( pour la longueur 5m4 )
Un très bon charpentier m'a conseillé de partir en contrecollé : bois plus stable , moins de flechissement , ...
il me conseille de passer en contrecollé duo/trio en 120X240 partout avec meme entraxe et entretoises.
Il me dit qu'il n'y aurait pas de souci pour mettre une baignoire dans le coté des 4 metres
C'est sur que ce serait le top mais ça coute une fortune !!
Si on compare avec ce que j'ai trouvé , c'est le jour et la nuit en terme d'argent !! : c'est trois le prix !!
Pensez vous que j'aurai du fléchissement anormal avec ma première solution?
Qu'en pensez vous ?
Merci beaucoup pour vos remarques et votre expertise
Cher Boisphile,




Votre message :
Vous devez vous connnecter pour poster un commentaire.
S'identifier ou créer un compte