Maison
[Réalisation] Construction d'une maison bois en plein Paris
Mis à jour le 8 sept. 2022Découvrez cette magnifique maison aux lignes contemporaines situées en plein Paris. Rencontre avec l'architecte Patrick Joubard.
Fiche technique
- Lieu : Paris
- Surface maison : 170 m²
- Surface terrain : N.C.
- Année de construction : 2006
- Bois utilisés : Ossature bois

Rencontre avec l'architecte : Patrick Joubard
"Après l'école Boulle et un BTS d'architecte d'intérieur, j'ai travaillé dans une agence d'architecture. Indépendant depuis 1993, j'interviens dans la rénovation, les extensions et les surélévations. J'utilise bien sûr le bois comme matériau privilégié, en ossature comme en bardage".
A la place de cette construction en bois s'élevait initialement un atelier de dépôt de cartonnage. Celui-ci a été rasé pour faire place à une maison agencée autour d'un jardin intérieur, réalisation de Patrick Joubard.
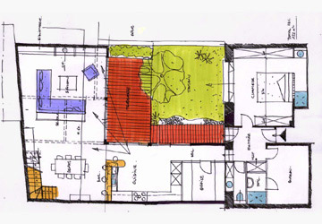
Le plan de la maison

La maison en perspective.

Le plan de la maison.
Le chantier

La cour débarrassée des restes de l'ancien atelier et devant accueillir la maison.

Une fois les fondations terminées, l'ossature de la structure est assemblée.
Le premier étage de la maison bois est posé sur une dalle de béton auto-portante. L'ossature et le toit sont en bois. II a été très facile de pratiquer des ouvertures et un puits de lumière dans le toit afin d'offrir un apport de lumière maximal. En outre, pour profiter de l'espace disponible, une mezzanine a été aménagée sous le toit.

Les ouvertures sont pratiquées directement dans la structure du toit.

Le toit est ensuite recouvert de zinc.
Si la toiture arrondie répond à un choix esthétique, elle a également permis la création d'une mezzanine et donc d'augmenter l'habitabilité de la maison.
Les poutres de la charpente suivent le galbe de l'arrondi. Le bois constituant le toit, naturellement isolant est doublé par du placo-plâtre.
Le toit est ensuite recouvert de zinc, matériau s'associant parfaitement bien avec le bardage qui habillera ensuite la maison.
La maison en détail

Un petit coin de verdure en plein Paris.

La verrière est habillée de stores en bois, laissant filtrer la lumière naturelle et protégeant les occupants des regards extérieurs.

Un puits de lumière éclaire à la fois le palier du 1er étage et le rez-de-chaussée.

Le bois est présent à l'intérieur comme à l'extérieur. En outre les baies vitrées prolongent l'espace à vivre jusque dans le patio.
Trois questions à l'architecte
Quelles difficultés avez-vous rencontrées dans ce projet ?
Si la mairie nous a tout de suite soutenus, les rapports avec une partie du voisinage ont été un peu plus compliqués. Nous avions besoin de la cour pour réaliser la maison. A surface égale, nous avons proposé l'échange avec un local commercial attenant à l'atelier et qui a ensuite été aménagé en local commun pour la copropriété. En outre, nous avons rencontré des difficultés d'accès pour apporter les matériaux de construction dans la cour entourée d'autres immeubles. L'ensemble de l'ossature en bois a donc été intégralement préparé en atelier puis assemblé sur place.
Une raison précise au choix du bois ?
Oui ! L'ossature bois présente l'avantage d'être légère ce qui a motivé mon choix pour ce chantier. Il fallait éviter toute perturbation dans la structure des immeublesenvironnants. Nous avons uniquement coulé une semelle en béton armé pour asseoir le bâtiment, puis monté la structure en bois.
Pour vous le bois présente-t-il des avantages ?
Le bois nous a ici permis d'aménagerdes ouvertures là où nous le souhaitions. Ainsi, la verrière, le puits de lumière et les baies vitrées apportent toute la luminosité nécessaire aux différentes pièces.
À voir sur le sujet :[Vidéo] Maison ossature bois : Quels avantages ?
partager
sur Facebook sur LinkedIn sur Pinterest par mail sur Twitter