Maison
[Réalisation] Une maison en bois à la campagne
Mis à jour le 8 sept. 2022Découvrez en images une maison bois aux lignes traditionnelles située dans la campagne de Rambouillet. Rencontre avec les propriétaires.
Fiche technique
- Lieu : Cerqueuse (78)
- Surface maison : 90 m²
- Surface terrain : 1 500 m²
- Année de construction : 2007
- Bois utilisés : Semelles en sapin traité autoclave et bardage pré-peint en sapin

Rencontre avec les propriétaires
Katell et Xavier : 100 % bois
"Notre maison est chaleureuse et vivante. Nous pensons d'ailleurs décorer l'ensemble des pièces avec du bois brut. Et pourquoi pas, dans quelques années, construire à nouveau en bois !"
La naissance d'un projet...
La rencontre avec le constructeur
"Une fois le terrain acheté, nous avons parcourus beaucoup de revues dédiées aux maisons à ossatures bois. La liste des nombreux avantages de ce type de construction nous a convaincu, et nous avons décidé de contacter un constructeur, Le Drein Courgeon."
Pourquoi le choix du bois ?
"Le bois est un matériau naturel et évolutif. Nous avons parfois l'impression que la maison vit ! De plus, l'isolation est parfaite : nous ne ressentons aucune sensation de froid ou d'humidité."
À lire sur le sujet : Les performances thermiques de la maison à ossature bois
Les plans

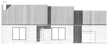
Katell et Xavier ont choisi de faire construire une extension de 25 m² sur le côté droit de la maison. Un grand garage, dont les combles sont aménageables.

Sur le plan initial, trois chambres étaient prévues. Le jeune couple en a préféré deux, au profit d'un salon-salle à manger plus spacieux, permettant l'aménagement d'une cuisine américaine.
Les étapes de constructions
"Nous avons déposé le permis de construire en septembre 2006. Les travaux ont débuté en janvier 2007 et nous avons reçu les clés dès le mois d'avril ! Nous n'étions pas préparés à autant de rapidité ! Aujourd'hui, nous prenons tout notre temps pour aménager l'intérieur à notre goût et selon nos envies."

Le montage des cloisons est une des étapes les plus importantes de la construction. En sapin, elles offrent une isolation idéale contre l'humidité et le froid.

Une fois la structure montée, la charpente est mise en place. Egalement en sapin, elle abrite 50 m² de combles aménageables. Une option idéale pour faire évoluer l'habitat.
Visite guidée de la maison

Le salon bénéficie de la lumière du soleil grâce aux grandes baies vitrées choisies par les propriétaires. Plus tard, une partie des murs sera habillée de lames de bois brut.

Leur mode de chauffage : un poêle à bois dans la pièce principale. Le corps vitré leur permet de profiter de la beauté des flammes, où qu'ils soient dans la pièce.

Sur le sol de la chambre principale : du jonc de mer. Un matériau sain, naturel et facile d'entretien se mariant parfaitement avec les couleurs naturelles du bois.

Au coeur de la maison, les poutres sont laissées apparentes. Un charme boisé correspondant à leurs envies.
Une fois la maison terminée
Votre pièce préférée ?
"La salle de bain, lumineuse et confortable. Puis le salon-salle à manger, où la flamme devient le coeur de la maison. "
Qu'est ce que vous changeriez avec le recul ?
"Rien ! Nous ne voyons aucun inconvénient à la construction bois !"
Un conseil pour de futurs propriétaires ?
"Il faut prendre le temps de bien mûrir son projet. L'idéal est de pouvoir dégager suffisamment de temps pour être présent sur le chantier et voir la maison se construire. Tout va tellement vite ! Mais que les futurs propriétaires soient rassurés : nous n'avons vraiment aucun regret !"

Le bardage pré-peint gris clair se fond parfaitement dans le paysage, où la plupart des habitations voisines sont en pierres ou crépis.
partager
sur Facebook sur LinkedIn sur Pinterest par mail sur Twitter